







































Зарегистрируйтесь, чтобы делать покупки, отслеживать заказы и пользоваться персональными скидками и баллами.








































Зарегистрируйтесь, чтобы делать покупки, отслеживать заказы и пользоваться персональными скидками и баллами.
Одноконтурные твердотопливные котлы — это устройства, предназначенные для обогрева помещений за счёт сжигания твердого топлива. Благодаря своей автономности и независимости от газовых магистралей и электрических сетей, такие котлы становятся особенно популярными в местах, где отсутствует стабильное централизованное отопление.
К основным преимуществам одноконтурных твердотопливных котлов можно отнести:
Недостатки также существуют. Среди них:
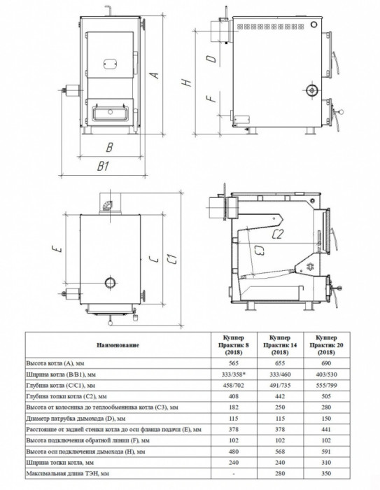
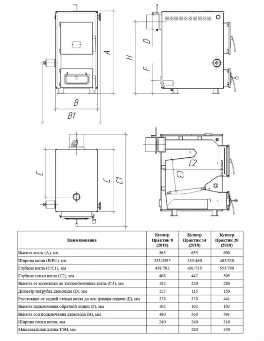
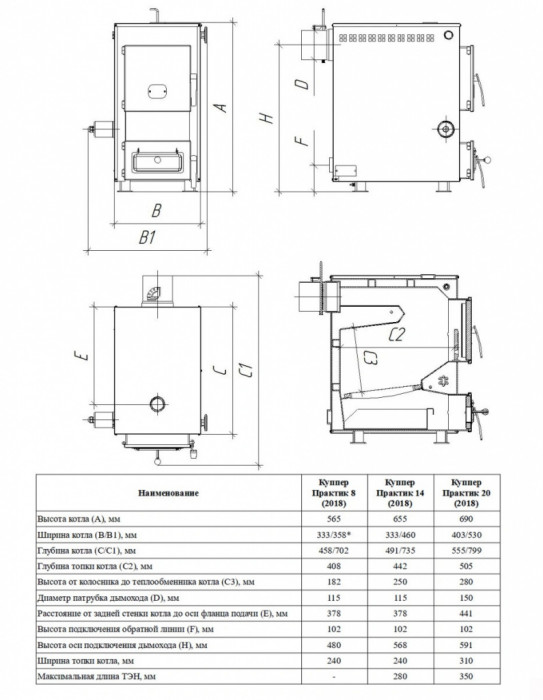
Котлы изготавливаются из чугуна или стали. Чугунные котлы известны своей долгосрочной службой и устойчивостью к коррозии, в то время как стальные котлы обладают большей теплопередачей и меньшим весом.
При выборе твердотопливного котла важно учитывать его мощность, что определяется объёмом топливника и конструкцией теплообменника. Также значимыми характеристиками являются КПД, уровень теплоизоляции и габариты устройства.
На что стоит обратить внимание при выборе:
Регулярное техническое обслуживание и правильная эксплуатация продлевают срок службы котла. Рекомендуется регулярно проверять очистку теплообменника и дымохода, проводить техническое обслуживание и следить за состоянием котла.
Монтаж котла должен осуществляться в специальном помещении с хорошей вентиляцией и соблюдением всех противопожарных норм. Не рекомендуется устанавливать котёл в жилых комнатах из-за риска выделения угарного газа.
Необходимо обеспечить надежную изоляцию дымохода, использовать только подходящие виды топлива и избегать перегрузки котла. Запрещается оставлять работающий котёл без присмотра на длительное время.
Для максимальной эффективности рекомендуется сочетать твердотопливные котлы с другими источниками тепла, такими как электрообогреватели или солнечные панели. Регулярно проверяйте системы безопасности и следите за состоянием дымохода для предотвращения аварийных ситуаций.
Проектирование систем отопления в Москве и Московской области: Комплексное решение под ключ
Подробнее